पानी
खुला स्विच उपकरण मेटल आर्मर्दै सुसज्जित
  • खुला स्विच उपकरण मेटल आर्मर्दै सुसज्जितखुला स्विच उपकरण मेटल आर्मर्दै सुसज्जित
  • खुला स्विच उपकरण मेटल आर्मर्दै सुसज्जितखुला स्विच उपकरण मेटल आर्मर्दै सुसज्जित
  • खुला स्विच उपकरण मेटल आर्मर्दै सुसज्जितखुला स्विच उपकरण मेटल आर्मर्दै सुसज्जित
  • खुला स्विच उपकरण मेटल आर्मर्दै सुसज्जितखुला स्विच उपकरण मेटल आर्मर्दै सुसज्जित
  • खुला स्विच उपकरण मेटल आर्मर्दै सुसज्जितखुला स्विच उपकरण मेटल आर्मर्दै सुसज्जित

खुला स्विच उपकरण मेटल आर्मर्दै सुसज्जित

Kyn28-12 प्रकार ओभर स्विच उपकरण चीन कारखाना केक्सून द्वारा उत्पादित स्विच उपकरण एक 12kv मध्यम-भोल्टेज स्विचर हो जुन विश्वमा व्यापक रूपमा प्रयोग गरिन्छ। यो पावर प्लान्ट, प्रतिस्थापन, औद्योगिक र खानी प्रवेशद्वार र अन्य वितरण प्रणालीहरूको लागि उपयुक्त छ, र उच्च सुरक्षा र मोडुलर डिजाइनका विशेषताहरू छन्।
मोडेल: Kyn28-12
ब्रान्ड: केक्सर

● मोडेल अर्थ

Open Switch Device Equipped With Metal Armoring

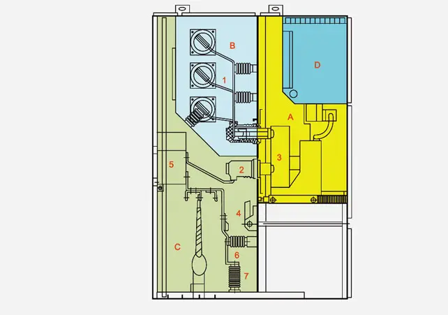
I ◆ खुला स्विच उपकरणको योजनाबद्ध रेखाचित्र धातु आर्मवी संरचनाको साथ सुसज्जित

Open Switch Device Equipped With Metal Armoring

◆ मानकहरू

Kyn28-12 प्रकार खुला स्विच उपकरणले निम्न मापदण्डहरू पूरा गर्न धातु आर्मर्डिंगको साथ सुसज्जित:

1. EC-29 2 2.GB3906-19991 3.DB / 404-1997.GB/T122222999

खुला स्विच उपकरण मेटल आर्मर्डिंगको साथ सुसज्जित दुई भागहरू समावेश गर्दछ: एक निश्चित क्याबिनेट र एक बकाने भाग (छोटोका लागि हस्तकलामा)। खुला स्विच उपकरणको खोल मेटल आयरिंग र प्रत्येक कार्यात्मक एकाईको विभाजनहरू एल्युमिनिनम-जिंक मैदान प्लेटहरू द्वारा बोल्छन्। यसको शेलको संरक्षण स्तर आईपीएक्स 4x मा पुग्छ, र प्रत्येक डिब्बे डिब्बा विभाजन बोर्ड र सर्किट ब्रेकर ढोका p2x हो। Kyn28-12 प्रकार खोल्नुहोस् खुला स्विच उपकरण VS1, zn 122 प्रकार भ्याकुम सर्किट ब्रेकरर हस्तकक र VC-CUBAMEST ब्रेकर सम्पर्ककर्ता, जुन हो, ब्याक-टुर्फिमेन्टमा। डाइभस्ट स्थापना गर्न सकिन्छ र फ्रन्टमा डिबग गर्न सकिन्छ, त्यसैले यो पर्खाल विरुद्ध स्थापना गर्न सकिन्छ। भित्ताको बिरूद्ध स्थापनाको सब भन्दा ठूलो लाभ यो हो कि यसले फ्लोर स्पेस बचत गर्न सक्छ। थप रूपमा, यो पर्खाल बिना स्थापना स्थापना गर्न सकिन्छ, त्यो हो, यो एक डबल पक्षीय रखरखाव प्रकार हो। दुईको आन्तरिक संरचना लेआउट असंगत छ, र यसको फाइदा सुविधाजनक रखरखाव हो।

 

◆ शेल र विभाजन

खोल गरिएको स्विच उपकरणको खोल र विभाजन मेट-गुणवत्ता आयातित एल्युमिनियम-कोटेम प्लेटहरू मध्ये बनेको छ जुन सीएनसी मेसिन उपकरणहरू द्वारा झुकाव पछि भनियो। यो कडा लर्ड्रॉसन प्रतिरोध र अक्सिडायरको प्रतिरोधको छ, र समान स्टील प्लेट भन्दा उच्च यांत्रिक बल छ। स्विच क्याबिनेट ह्यान्डकार्ट कोठामा विभाजित गरिएको छ (सर्किट ब्रेकर कपार्टमेन्ट), बस कोठा, केबल कोठा र रिलेल ट्रान्सल कोठा (कम भोल्टेज कोठा) विभाजन द्वारा। प्रत्येक एकाईको खोल स्वतन्त्र रूपमा आधारित छ।

◆ उत्पाद सिंहावलोकन

खोल स्विच उपकरणको खोल र विभाजन मेटल आर्मर्डिंगको साथ सुसज्जित एल्युमिनियम-जिंक मैदान प्लेटहरू वा स्टील प्लेटहरू हुन् जुन सीएनडी स्विच मन्त्रिपरिषद्ले आकारमा एकरूपता कायम गर्न सक्दछ। एल्युमिनियम-र्यांक लेड इस्किल प्लेटमा कडा एन्टि-ऑक्सीपेशन प्रभावहरू छन्, र समान स्टील प्लेट भन्दा उच्च यांत्रिकीणात्मक शक्ति छ। स्विच क्याबिनेट हस्तकथाको कोठामा विभाजन गरिएको छ, बस कोठा, केबल कोठा र सान्दै ट्रान्जिट क्षेत्रहरू विभाजन गर्दछ, र प्रत्येक एकाईको शेलले स्वतन्त्र जाउलाई स्वतन्त्र प्रसारण गर्दछ। स्विच क्याबिनेटका ढोकाहरू सबैले आफ्ना सतहहरू प्रदान गर्न निगरावस्टिक प्लास्टिकको साथ स्प्रे गरिएका छन् जुन उनीहरूका सतहहरू छन्।

◆ रूपरेखा आयाम

खुला स्विच उपकरणको रूपरेखा आयामहरू धातु पाएकोले सुसज्जित छ:

उचाई (बी)

20000mm

चौडाई (a)

जब शाखा बस को रेंच हाल 1 1600a भन्दा तल छ र छोटो सर्किट ब्रेकभिंग वर्तमान 31. la छ,

800 मिमी

1 1600a भन्दा माथि शाखा बसको वर्तमानमा मूल्या .्कन गर्दा।

1000mm

गहिराई (c)

केबल आगमन र बहिर्गमन लाइन

10000mm

ओभरहेड आगमन र बहिर्गमन लाइन

16600 मिमी

तौल

800-1200 किलोग्राम

 


Open Switch Device Equipped With Metal ArmoringOpen Switch Device Equipped With Metal Armoring

 

◆ प्रमुख कम्पोनेन्ट

Open Switch Device Equipped With Metal ArmoringOpen Switch Device Equipped With Metal Armoring

 

हट ट्यागहरू: खुला स्विच उपकरण मेटल आर्मर्डिंग, खुला स्विच उपकरण, चीन कारखाना, केक्सून इलेक्ट्रिकल
सोधपुछ पठाउनुहोस्
सम्पर्क जानकारी
  • ठेगाना

    No.228 वेशिनी सडक, युजेरिंग आर्थिक विकास क्षेत्र, वेनजो शहर, जेजेया un प्रान्तको चीन

  • टेलिफोन

    +86-15258076596

केबल शाक्दा बक्सको बारेमा सोधपुछको लागि, उच्च भोल्टेज स्विचर, कम भोल्टेज स्विचर वा मूल्य सूची, कृपया तपाईंको ईमेल हामीलाई छोप्नुहोस् र हामी 2 24 घण्टा भित्रमा छुनेछौं।
X
हामी तपाईंलाई राम्रो ब्राउजिङ अनुभव प्रदान गर्न, साइट ट्राफिक विश्लेषण र सामग्री निजीकृत गर्न कुकीहरू प्रयोग गर्छौं। यो साइट प्रयोग गरेर, तपाईं कुकीहरूको हाम्रो प्रयोगमा सहमत हुनुहुन्छ। गोपनीयता नीति
अस्वीकार गर्नुहोस् स्वीकार गर्नुहोस्